【プレールクリエイション株式会社】京都市の不動産・賃貸・管理・リフォーム│プレールクリエイション株式会社
賃貸物件
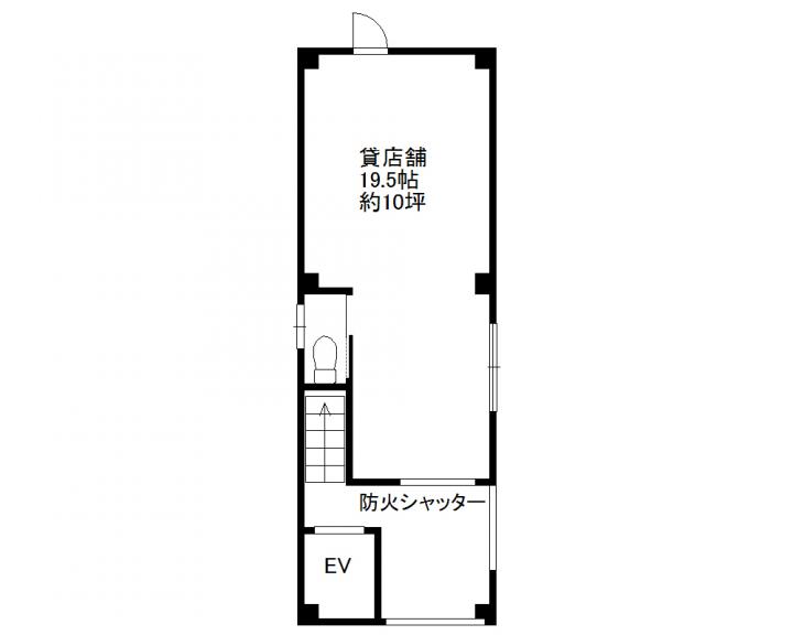
占出山町店舗(新築)
270,000円
京都市中京区錦小路通室町東入占出山町301
阪急京都線 四条駅 徒歩 3分
地下鉄烏丸線 四条駅 徒歩 4分
- 面積
- 33.94㎡
- 築年月
- 2015年05月
- 管理費等
- 込み
物件概要
| 建物構造 | 鉄骨造 |
|---|
| 所在階 / 階数 | 1階 |
|---|
| 主要採光面 | 南側 |
|---|
| 契約期間 | 3年 |
|---|
| 引渡 | 即時 |
|---|
| 現況 | 空 |
|---|
| 設備・条件 | 電気・都市ガス・上下水道・トイレウォームレット |
|---|
| 備考 | 入居審査有 |
|---|
| 取引態様 | 媒介 |
|---|
| 物件番号 | T28u |
|---|

