【プレールクリエイション株式会社】京都市の不動産・賃貸・管理・リフォーム│プレールクリエイション株式会社
賃貸物件
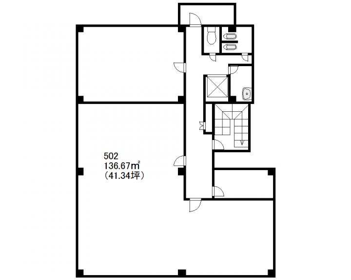
西川ビル
446,500円
京都市中京区蛸薬師通高倉西入泉正寺町328
京都市烏丸線四条駅 徒歩 5分
- 面積
- 136.67㎡
- 築年月
- 1992年06月
- 敷金
- 12か月
物件概要
| 建物構造 | RC |
|---|
| 所在階 / 階数 | 5階 |
|---|
| 引渡 | 相談 |
|---|
| 現況 | 空 |
|---|
| 備考 | 保証金421.67万円解約引き |
|---|
| 取引態様 | 媒介 |
|---|
| 物件番号 | T10 |
|---|
西川ビル
京都市中京区蛸薬師通高倉西入泉正寺町328
京都市烏丸線四条駅 徒歩 5分
| 建物構造 | RC |
|---|
| 所在階 / 階数 | 5階 |
|---|
| 引渡 | 相談 |
|---|
| 現況 | 空 |
|---|
| 備考 | 保証金421.67万円解約引き |
|---|
| 取引態様 | 媒介 |
|---|
| 物件番号 | T10 |
|---|
四条駅から徒歩5分の好立地!
広々としたオフィスです。
テナント・店舗・オフィス、
独立開業をお考えの方!
南北は松原通から三条通、
東西は油小路から富小路のテナント情報なら
はな不動産にお任せ下さい!
オープンまでのサポートも充実しております!