【賃貸物件】永原町戸建テナント(その他)|地下鉄烏丸線 四条駅|京都市の不動産・賃貸・管理・リフォーム│プレールクリエイション株式会社

テナント・店舗・オフィス

【 その他 】戸建テナントです!隠れ家的 飲食可

最寄駅所在地面積築年月賃料
管理費等
敷金
礼金

地下鉄烏丸線 四条駅

徒歩 5分
京都市下京区柳馬場通綾小路下る永原町14496.59㎡1994年12月240,000円 -
-

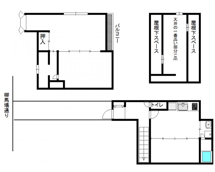
物件写真・間取り

平面図

物件概要

物件名

永原町戸建テナント

交通機関

地下鉄烏丸線 四条駅 徒歩 5分

阪急烏丸線 徒歩 5分

建物構造

木造

所在階 / 階数

1~3階

契約期間

3年

引渡

即時

現況

備考

更新料:新家賃1カ月分

保証金:6カ月分

改装は指定業者有

取引態様

媒介

物件番号

T35u

物件地図左上の人型アイコンを地図上にドラッグするとストリートビューで表示されます。

永原町戸建テナント

京都市下京区柳馬場通綾小路下る永原町144

地図を戻す

資料請求・お問い合わせ

物件名 【T35u】 永原町戸建テナント
お問い合わせ内容
お名前
電話番号
メールアドレス
確認のため同じアドレスをご入力ください。
備考欄ご希望の連絡方法、見学希望日、希望条件、質問などがございましたら、ご記入ください
おすすめ賃貸物件
種別
マンション [1 K]
路線
阪急京都線「桂」駅
所在地
京都市西京区桂艮町4-12
賃料
40,000円
種別
マンション [1 DK]
路線
京福北野線「北野白梅町」駅
所在地
京都市上京区西町89
賃料
40,000円
おすすめ売買物件
会社案内

プレールクリエイション株式会社

京都市下京区松原通西洞院西入ル天神前町350番地2 More西洞院2階

メールフォームはこちら

宅建免許番号:京都府知事(3)第 13315 号

京都府京都市内全般のお住まい探しは、プレールクリエイション株式会社にお任せ下さい。当社は京都の中心「西洞院松原」の交差点北西角に位置します。