【 マンション 】分譲ならではの高級な造りと充実した設備で京都の新生活を!
| 最寄駅 | 所在地 | 間取り | 面積 | 築年月 | 賃料 管理費等 | 敷金 礼金 |
|---|---|---|---|---|---|---|
京都市営地下鉄烏丸線 五条駅 徒歩 約1分 | 京都市下京区諏訪町通五条下る上諏訪町294-6 | 3 LDK | 86.35㎡ | 2013年02月 | 230,000円 込 | 250,000円 400,000円 |
駅徒歩1分の好立地で各方面へのアクセス良好。
ハイグレード設備の分譲賃貸マンションです。
通風、陽当り、眺望良好です。
24時間スーパー、コンビニ等が
近くにあり、生活至便です。
洛央小学校区 下京中学校
物件写真・間取り
物件概要
| 物件名 | ルネ京都烏丸五条 |
|---|
| 交通機関 | 京都市営地下鉄烏丸線 五条駅 徒歩 約1分 京都市営地下鉄烏丸線 四条駅 徒歩 10分 |
|---|
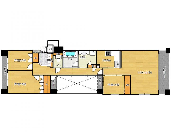
| 間取り詳細 | 洋7.0帖 洋5.0帖 洋4.5帖 LDK16.7帖 |
|---|
| 建物構造 | RC |
|---|
| 所在階 / 階数 | 9階/11階 |
|---|
| 主要採光面 | 南側 |
|---|
| 駐車場 | 無 |
|---|
| 契約期間 | 3年 |
|---|
| 引渡 | 即時 |
|---|
| 現況 | 空 |
|---|
| 設備・条件 | エレベーター オートロック 宅配ボックス TVモニターホン 24hセキュリティ システムキッチン(IHコンロ)ウォシュレット シャンプードレッサー 食器洗浄乾燥機 他 |
|---|
| 備考 | 定期賃貸借契約3年(法人契約普通賃貸借相談) |
|---|
| 取引態様 | 媒介 |
|---|
| 物件番号 | 194 |
|---|















物件番号【250011N】