千本通り面した収益マンション 各大学アクセス良好
|
間取図
|
京大・同志社・同志社女子・佛大などが近く、 学生さんが多いエリアの収益マンションです。 そんな気になる物件詳細はコレ⇒【上京区笹屋町マンション】 |
|---|
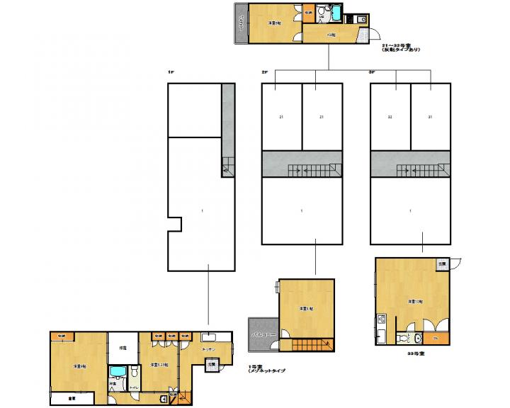
京都市立看護短期大学近くにある収益マンション
|
間取図
|
京都市立看護短期大学近くの単身者向けマンション 1Kタイプとメゾネットタイプがございます。 そんな気になる物件詳細はコレ⇒【中京区壬生松原町マンション】 |
|---|
島津製作所近く 全室サンルームのある収益マンション
|
間取図
|
島津製作所の近くの収益マンション 近隣にはコンビニや24時間営業のスーパーがあり、 普段のお買い物にも便利な立地 そんな気になる物件詳細はコレ⇒【中京区壬生上大竹町マンション】 |
|---|
人気の西陣中央小学校区 3LDKマンション
|
間取図
|
室内バリアフリー・フローリング仕上 SECOMホームセキュリティ完備 そんな気になる物件詳細はコレ⇒【レジデンス西陣中央】 |
|---|
最上階・角部屋 3LDK賃貸マンション
|
間取図
|
出町商店街1分・鴨川すぐ・地下鉄今出川駅まで10分の 好立地賃貸マンション 南向きルーフバルコニー付きの最上階のお部屋です。 そんな気になる物件詳細はコレ⇒【ライフプラザ河原町今出川】 |
|---|
北野天満宮に程近い抜群の環境
|
間取図
|
学問の神様で有名な「北野天満宮」へ徒歩2分の京都情緒の溢れる立地です。 食洗機や床暖房、ミストサウナカワックなど設備面も充実しております。 そんな気になる物件詳細はコレ⇒【リソシエラグジェ北野】 |
|---|
1Fカフェテラスの有る最高級デザイナーズマンション
|
間取図
|
入り口には暖かみのある木を多用したエントランス。 吹き抜けから入る光とオブジェを思わせる階段のある広々としたエレベーターホール。 そんな気になる物件詳細はコレ⇒【シュワルベ】 |
|---|
3LDK分譲賃貸マンション 「四条駅」まで徒歩3分の好立地!!
|
間取図
|
交通の便はもちろん、住戸の設備も充実しています。 24時間スーパーが近くにあるので、日々のお買いものも大変便利です。 そんな気になる物件詳細はコレ⇒【グラン・コート綾小路】 |
|---|
河原町エリア 分譲賃貸マンション3SLDK
|
間取図
|
3wayアクセスの利用可能の便利地の好立地マンション 東南角部屋・2面バルコニーの明るい住戸です。 そんな気になる物件詳細はコレ⇒【ガーデンコート河原町】 |
|---|
京都らしい外観の分譲賃貸マンション
|
間取図
|
京都の中心地スグの好立地マンション 風情のある外観・エントラスです。 学区:清水小学校区 洛東中学校区 そんな気になる物件詳細はコレ⇒【グランシティオ京都東山八坂通り】 |
|---|





















